06 May Project Presentation: Woodrow Wilson
Continuing from last week’s post, this week we have another project that we presented through PowerPoint via Zoom.
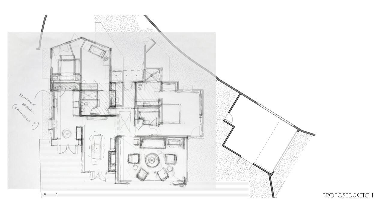
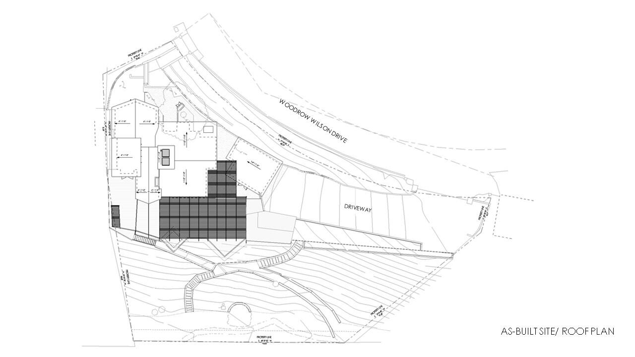
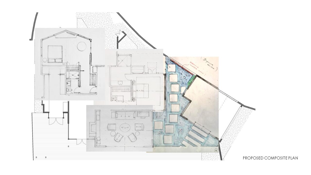
Unlike the project from last week, this project we had an Auto Cad base that we were able to bring into Revit to create a BIM model. This allowed us to incorporate some 3D views of the existing which the clients very much appreciated! The project scope was still being worked out through hand drafting and sketches so we wanted to create a “trace paper” feel in our presentation to the client. Check it out below and let us know what you think!
Hope you enjoyed our presentation! Thanks for tuning in and let us know what tools you or your office are using to share your ideas!
Stay safe, wear a mask and wash those hands!!! See you next week!
Discover more from Hayne Architects
Subscribe to get the latest posts sent to your email.


















