16 Jun Project Spotlight: Dude, where’s my column?
Previously in our REVIT tutorials, we were looking at how to construct a base model using drawing information provided by the Client. This can be a difficult task depending on the quality of the information you receive. Is there a survey? Are they AutoCAD drawings? Are there multiple sets? Are there discrepancies? After a certain point in the design process (past Schematic) you will need more detailed and accurate information, and so you plan a field trip…
I always use a checklist when conducting my as-built surveys (check out EntreArchitect for some great base forms!) to make sure that I don’t miss anything. Here’s what you need:
- Your Checklist!
- A Camera – I tend to take a lot of pictures (and my Iphone just can’t store them all…) because you never know when you will need that random shot of the door jamb to complete your drawings. I use a Nikon D3000.
- A tape measure – I carry a Pittsburgh 25ft. x 1in
- A laser measure – THIS IS A MUST! My Leico Disto A5 is always in my bag.
- A notebook/ Sketchbook – I mean really… you can’t do your job without one of these!
- A pen/pencil – I carry a small case with a variety of pencils, pens, and highlighters. Color coding your field sketches will help keep you organized!
- Small printed plans – If you are lucky you may have some base drawings from the Client. If you are unlucky… I recommend starting off with a quick walk-through of the building and sketching the basic layout in your notebook as a base for all of your measurements.
Now that we have all of our supplies, lets get started!
- I begin with my photo documentation. Make sure to get all the exterior surfaces, general interior spaces, and details shots.
- Exterior View
- Exterior View
- Entry from Courtyard
- Hmmmm… I don’t remember that post being in the drawings…
- Exposed Structure
- Eave Details
- Why is that door threshold higher than all the others?
- Lets go up stairs
- Oh wait, I mean up this ladder… The drawings showed stairs… #appropriateshoes
- Repetition, Repetition, Repetition
- Structural Details
- Structural Details
- The Future Main Office
- Now start your measuring. Begin in one corner of the space and work your way around the room. Use sketch symbols and highlighters to add more information to your field sketch.
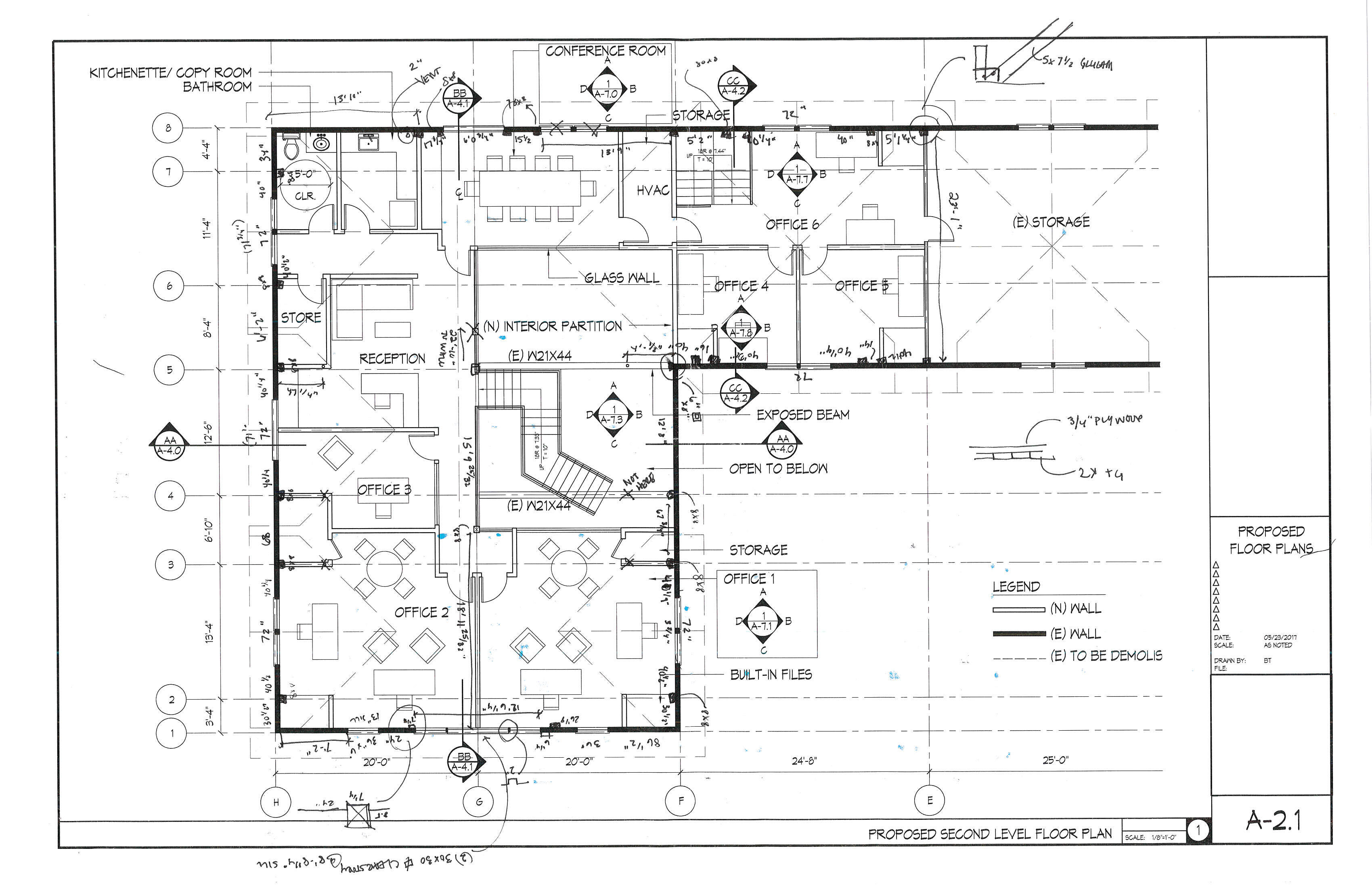
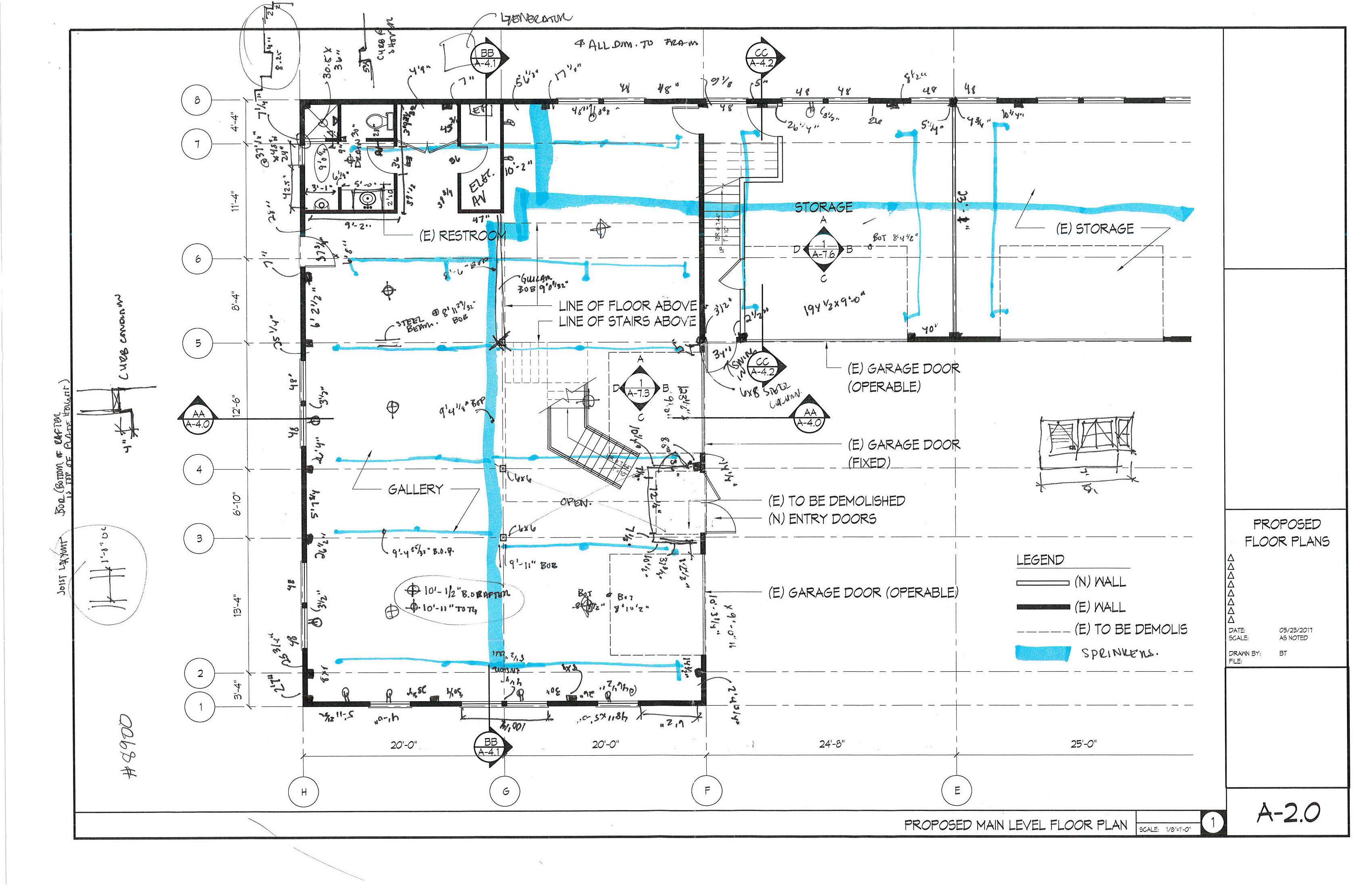
- Main Level – Dude, where’s my column?
- Second Level
- Upstairs Sprinkler System
- Now, go back the office and start drawing everything up… But first lets hit up some wineries on the way home… #Georis #LarnerVineyards

Verification in Progress…
Once our field documentation package is complete we can start to model our proposed new space!
Discover more from Hayne Architects
Subscribe to get the latest posts sent to your email.















